Dennis Bay Historic District
Dennis Bay Historic District is a historic district which was listed on the National Register of Historic Places in 1981.[1] It is located northeast of Cruz Bay off North Shore Rd., in Virgin Islands National Park. The plantation was claimed and cleared by 1728 to operate as a sugar cane plantation.[2]
Dennis Bay Historic District | |
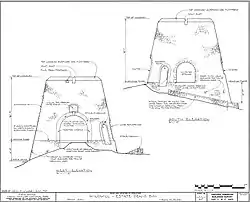
![]() Windmill plan | |
![]() | |
| Location | NE of Cruz Bay off North Shore Rd., Virgin Islands National Park |
|---|---|
| Coordinates | 18.352285°N 64.775415°W |
| Area | 20 acres (8.1 ha) |
| Built | 1728 |
| MPS | Virgin Islands National Park MRA |
| NRHP reference No. | 81000095[1] |
| Added to NRHP | July 23, 1981 |
This article is issued from Wikipedia. The text is licensed under Creative Commons - Attribution - Sharealike. Additional terms may apply for the media files.


.svg.png.webp)