Hiller OH-23 Raven
The Hiller OH-23 Raven is a three-place, military light observation helicopter based on the Hiller Model 360. The Model 360 was designated by the company as the UH-12 ("UH" for United Helicopters),[1] which was first flown in 1948.
| OH-23 Raven | |
|---|---|
![]() | |
| Hiller OH-23G Raven | |
| Role | Multipurpose light helicopter |
| Manufacturer | United Helicopters Hiller Aircraft |
| Introduction | 1948 |
| Status | Retired |
| Primary users | United States Army Colombian Air Force |
Development
In 1947, United Helicopters (later renamed Hiller Aircraft) developed the prototype Model 360X helicopter. A year later, on 14 October 1948 the Civil Aeronautics Authority (CAA) issued a production certificate for the Model 360. United Helicopters began producing the Model 360 as the UH-12. In 1949, the UH-12 became the first helicopter to make a transcontinental flight from California to New York. When Hiller upgraded the engine and the rotor blades, the company designated the new model as the UH-12A. It was the UH-12A that would be adopted by both the French and United States militaries, as well as being used by civil commercial operators in several countries.
Operational history
The H-23 Raven performed as a utility, observation, and MedEvac helicopter during the Korean War. Model numbers ranged A through D, F and G. The H-23A had a sloping front windshield. The H-23B was used as a primary helicopter trainer. Beginning with the UH-23C, all later models featured the "Goldfish bowl" canopy similar to the Bell 47.
The Raven used Hiller's "Rotor-Matic" cyclic control system, with two small servo rotor paddles offset 90 degrees to the main rotor blades. The paddles were attached to the control column, so that movement of the column would cause the pitch of the servo paddles to change, loading the main rotor blade so that the desired cyclic changes to the rotor occurred.[2] The OH-23 had a top speed of 97 mph (156 km/h; 84 kn). The Raven had a two-bladed main rotor, a metal two-bladed tail rotor. Both the OH-23B and the OH-23C were powered by one Franklin O-335-5D engine.
The OH-23D was a purely military version with a Lycoming O-435-23C engine and a more reliable transmission. Most OH-23Ds were replaced by the OH-23G, the most common version of the Raven, with a more powerful Lycoming O-540-9A six-cylinder, horizontally opposed, air-cooled 305 hp (227 kW) engine. The OH-23G could seat three. The MEDEVAC version carried two external skid-mounted litters or pods. The Raven saw service as a scout during the early part of the Vietnam War before being replaced by the Hughes OH-6A Cayuse in early 1968. A Raven piloted by Hugh Thompson, Jr. played a crucial role in curtailing the My Lai Massacre. When a Raven of the 59th Aviation Company strayed north of the Korean DMZ in August 1969 it was shot down and the crew were kept prisoner until released on December 2.
The Raven could be armed with twin M37C .30-caliber machine guns on the XM1 armament subsystem or twin M60C 7.62 mm machine guns on the M2 armament subsystem. The XM76 sighting system was used for aiming the guns.
The Royal Navy's No. 705 Training Squadron used Hiller HTE-2s for several years from 1953 and later operated Hiller 12E's for many further years as its basic helicopter trainer based at RNAS Culdrose located in Cornwall, England.
Variants

_bw.jpg.webp)

Military
- YH-23
- One Model UH-12A, modified with two-seat cabin and 178 hp Franklin engine for U.S. Army evaluation.[3]
- H-23A
- Initial production version with 178 hp (133 kW) Franklin O-335-4 piston engine and two-seat cockpit, 100 built for the U.S. Army[4] and 5 for evaluation by the U.S. Air Force.[5]
- H-23B
- H-23A with skid/wheel undercarriage and 200 hp (149 kW) O-335-6 engine (some later re-engined with a 250 hp VO-435-23B), re-designated OH-23B in 1962, 273 built for the U.S. Army[4] and 81 for military export.
- H-23C
- Model UH-12C with three-seat cabin, one-piece canopy and metal rotor blades, 145 built for the U.S. Army. Re-designated OH-23C in 1962.[4]
- H-23D
- H-23C with new rotor, transmission and 250 hp (187 kW) Lycoming VO-435-23B engine, 348 built for U.S. Army. Re-designated OH-23D in 1962.[4]
- H-23E
- Model UH-12E, not bought
- H-23F
- Model UH-12E-4, four-seat model with 25-inch cabin extension and a 305 hp VO-540-A1B engine, redesignated OH-23F in 1962, 22 built for U.S. Army.[4]
- H-23G
- Three-seat dual control version of H-23F, redesignated OH-23G in 1962, 793 built.[4]
- HTE-1
- U.S. Navy version of the Model UH-12A with Franklin O-335 engine, two-seater with dual controls, and wheeled tricycle undercarriage, 17 built.
- HTE-2
- U.S. Navy version of H-23B with Franklin O-335-6 engine, 35 built.[7]
- Hiller HT Mk 1
- Royal Navy designation for 20 former U.S. Navy HTE-2s.
- Hiller HT Mk 2
- UH-12Es for Royal Navy. 21 supplied.
- CH-112 Nomad
- Canadian military designation for the UH-12Es.
Civilian
- UH-12A
- Original production model for the U.S. Army, powered by a six cylinder fan-cooled Franklin 6V4-178-B33 engine with a maximal power of 178hp at 3000 rpm. The main rotor blades (produced by the Parsons Industries Inc.) are of solid wood laminations. The body of the blade is in fact essentially made up of numerous strip and block wooden laminations designed to provide a strong but highly flexible blade. The entire blade surface is covered with fiberglass cloth with the leading edge covered with an additional stainless steel sheet. The tail rotor is of all metal construction.
- UH-12B (HTE-2)
- Training version for the U.S. Navy. U.S. Navy designation HTE-2 prior to 1962.
- UH-12C
- Three-seat version, equipped with wood rotor blades and one-piece 'goldfish bowl' canopy.
U.S. Army designation H-23C.
- UH-12D
- Improved version of the H-23C for the U.S. Army. U.S. Army designation H-23D.
- UH-12E
- Three-seat dual-control version of the H-23D.
- UH-12ET
- Turbine-powered version of the UH-12E, fitted with an Allison 250 turboshaft engine.
- UH-12E-3
- New three-seat production version.
- UH-12E-3T
- New turbine-powered production version.

- UH-12-E4
- Four-seat civilian version. United States Army designation H-23F. VO-540 powered. Conversion kit available for E-12 models.[9]
- UH-12E-4T
- Four-seat turbine-powered production version.
- UH-12L-4
- Lengthened version with wider cabin windows.
Operators

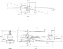
Specifications (H-23D)

Data from United States Military Aircraft since 1909[28]
General characteristics
- Crew: 2
- Height: 9 ft 9.5 in (2.985 m)
- Empty weight: 1,816 lb (824 kg)
- Max takeoff weight: 2,700 lb (1,225 kg)
- Powerplant: 1 × Lycoming VO-435-23B 6-cylinder air-cooled horizontally-opposed piston engine, 250 hp (190 kW) [29]
- Main rotor diameter: 35 ft 5 in (10.80 m)
- Main rotor area: 985 sq ft (91.5 m2) [29]
- Blade section: NACA 0012[30]
Performance
- Maximum speed: 95 mph (153 km/h, 83 kn)
- Cruise speed: 82 mph (132 km/h, 71 kn)
- Range: 197 mi (317 km, 171 nmi)
- Service ceiling: 13,200 ft (4,000 m)
- Rate of climb: 1,050 ft/min (5.3 m/s)
See also
Aircraft of comparable role, configuration, and era
Related lists
References
- Donald, David. The Complete Encyclopedia of World Aircraft. New York: Barnes & Noble Books, 1998.
- Bridgman 1953, pp. 240–241.
- Harding 1990, p.141.
- Harding 1990, p.142.
- Swanborough and Bowers 1963, p.274.
- "Hiller HTE-2 'Raven'". Aero-web.org. Retrieved 15 November 2009.
- A.C. Bass (November 1960). "E-4 "Station Wagon"". Flying Magazine.
- "World Air Forces 1987 pg. 40". flightglobal.com. Retrieved 23 March 2013.
- "Policia de la Provincia de Buenos Aires UH-12E". Retrieved 23 March 2013.
- "CH-112 Nomad". canadianwings.com. Retrieved 23 March 2013.
- "World Helicopter Market 1968 pg. 50". bell47.net. Retrieved 2013-03-23.
- "World Helicopter Market 1968 pg. 51". flightglobal.com. Retrieved 23 March 2013.
- Vesser 2005, p. 20
- "World Helicopter Market 1968 pg. 52". bell47.net. Retrieved 2013-03-23.
- "World Helicopter Market 1968 pg. 53". flightglobal.com. Retrieved 23 March 2013.
- "Koninklijke Luchtmacht UH-12E". Retrieved 23 March 2013.
- "World Air Forces 1987 pg. 77". flightglobal.com. Retrieved 23 March 2013.
- "World Helicopter Market 1968 pg. 54". flightglobal.com. Retrieved 23 March 2013.
- "US→South Korea (1966-1967)". armstrade.sipri.org. Retrieved 23 March 2013.
- "South Korean Army OH-23". Demand media. Retrieved 23 March 2013.
- "World Helicopter Market 1968 pg. 55". bell47.net. Retrieved 2013-03-23.
- "Royal Navy Fleet Air Arm UH-12B HTE-2". Retrieved 23 March 2013.
- "World Helicopter Market 1968 pg. 59". flightglobal.com. Retrieved 23 March 2013.
- "The H-23 Raven Helicopter". bell47.net. Retrieved 2013-03-26.
- "World Air Forces 1975 pg. 314". flightglobal.com. Retrieved 23 March 2013.
- Swanborough and Bowers 1963, p.276.
- Harding 1990, p.143.
- Lednicer, David. "The Incomplete Guide to Airfoil Usage". m-selig.ae.illinois.edu. Retrieved 16 April 2019.
Bibliography
- Bridgman, Leonard. Jane's All the World's Aircraft 1953–54. London: Sampson Low, Marston & Co. Ltd, 1953.
- Elliot, Bryn (March–April 1997). "Bears in the Air: The US Air Police Perspective". Air Enthusiast. No. 68. pp. 46–51. ISSN 0143-5450.
- Harding, Stephen. U.S. Army Aircraft since 1947. Shrewsbury, UK: Airlife, 1990. ISBN 978-1-85310-102-1
- "Pentagon Over the Islands: The Thirty-Year History of Indonesian Military Aviation". Air Enthusiast Quarterly (2): 154–162. n.d. ISSN 0143-5450.
- Spenser, Jay. Vertical Challenge: The Hiller Aircraft Story. AuthorHouse. 2003. ISBN 978-0-7596-3398-8
- Swanborough, F.G. and Bowers, Peter M. United States Military Aircraft since 1909. London: Putnam, 1963.
- Swanborough, Gordon and Bowers, Peter M. United States Navy Aircraft since 1911 (second edition). London: Putnam, 1976. ISBN 978-0-370-10054-8]
- Thetford, Owen. British Naval Aircraft since 1912 (fourth edition). London: Putnam, 1978. ISBN 978-0-370-30021-4
- Vetter, Frank (2005). "Debrief: German Border Police 50th anniversary". International Air Power Review. Vol. 17. pp. 20–21. ISSN 1473-9917.
- OH-23 Factsheet
