SIA 7
The SIA 7B was a biplane reconnaissance-bomber built by the Società Italiana Aviazione and served with the Italian Corpo Aeronautico Militare and American Expeditionary Force in 1917.
| SIA 7 | |
|---|---|
![]() | |
| S.I.A. 7B | |
| Role | Reconnaissance-bomber |
| National origin | Italy |
| Manufacturer | Società Italiana Aviazione |
| Designer | Torretta and Carlo Maurilio Lerici |
| First flight | Summer 1917 |
| Introduction | 1917 |
| Primary users | Corpo Aeronautico Militare American Expeditionary Force |
| Number built | 572[1] |
Development
The engineers, Torretta and Carlo Maurilio Lerici of the Fiat company, designed the airplane as a "Jack of all trades", its speed, climbing power, and carrying capacity enabled it to be used as a bomber and racer.[2] It was built in the workshops of the Societa Italiano Aviazione, a sister company to the famous motor-car firm F.I.A.T. of Turin.[2] It used the standard Italian structural feature of a plywood-covered fuselage.[3]
The SIA.7B was accepted for the Italian Air Force in November 1917 and entered mass production. There were however revealed its shortcomings, like low wing structure durability and poor view.[1] Next variant SIA.7B2, developed in December 1917, had strengthened wings, slightly raised cockpits and stronger engine. Another variant, built in February 1918, was the SIA 9 with stronger 700 hp engine. There were built 501 SIA.7B, 71 SIA.7B2 and 62 SIA.9B.[1]
Operational history
The SIA.7 family aircraft were used for reconnaissance and bombing raids on Austro-Italian front. The SIA.7B2 entered service in March 1918. The SIA.9 managed to take part in World War I service as well. Because of unsatisfactory durability, from July 1918 SIA.7B and 7В2 were moved to training units.
In 1917, the Italian government sent a pair of SIA 7B-1 aircraft to the United States for evaluation under a plan to mass-produce established European designs. The 7B-1 was not put into production in the US but 19 were bought in Italy for use by A.E.F. units sent there.[3]
Variants


- SIA 7B1
- main reconnaissance-bomber variant
- SIA 7B2
- improved reconnaissance-bomber variant
- SIA R2
- scout-bomber built in 1918, span 12.32 m (40 ft 5 in), length 8.75 M (28 ft 8 in), height 3.3 m (120 ft 10 in), speed 180 km/h (111.8 mph)[2]
- SIA 9B
- two-seat reconnaissance-bomber 700 hp (522 kW) Fiat A.14 engine[2]
Operators
- American Expeditionary Forces received 19 7B-1 in February 1917, used at Foggia, Italy.[4]
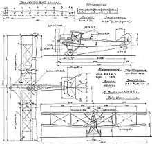
Specifications (7B)

Data from Jane's Fighting Aircraft of World War I[5]
General characteristics
- Crew: 2
- Length: 8.75 m (28 ft 8 in)
- Wingspan: 12.32 m (40 ft 5 in)
- Height: 3.3 m (10 ft 10 in)
- Wing area: 45.6 m2 (491 sq ft)
- Gross weight: 1,670 kg (3,682 lb)
- Fuel capacity: 215 kg (474 lb) (307 L (81 US gal; 68 imp gal) at Specific Gravity of 0.7)
- Powerplant: 1 × Fiat A.12bis 6-cylinder water-cooled in-line piston engine, 220 kW (300 hp)
- Propellers: 2-bladed fixed-pitch wooden propeller, 2.8 m (9 ft 2 in) diameter 1.85 m (6 ft 1 in) pitch at 1,500 rpm
Performance
- Maximum speed: 180 km/h (110 mph, 97 kn) at 200 m (656 ft)
- 165 km/h (103 mph; 89 kn) at 2,000 m (6,562 ft)
- Landing speed: 75 km/h (47 mph; 40 kn)
- Endurance: 4-6 hours[1]
- Rate of climb: 1.24 m/s (244 ft/min)
- Time to altitude:
- 1,000 m (3,281 ft) in 6 minutes
- 2,000 m (6,562 ft) in 14 minutes
- 3,000 m (9,843 ft) in 23 minutes
- 4,000 m (13,123 ft) in 38 minutes
- Wing loading: 36.7 kg/m2 (7.5 lb/sq ft)
- Power/mass: 0.134 kW/kg (0.082 hp/lb)
Armament
- Guns: 1x 6.5 mm (0.256 in) Fiat–Revelli Modello 1914 machine gun on a flexible mount in the rear cockpit
- Bombs: 60 kg (132 lb) bombs [1]
References
- SIA.7(9) at Ugolok Neba (in Russian)
- Taylor, 2001, Page 207
- Swanborough & Bowers, 1964, page 559.
- Fahey, 1946, page 12
- John W.R. Taylor (1990). "forward". Jane's Fighting Aircraft of World War I. By Whittaker, W. E. De. B. New York, N.Y.: Military Press. p. 207. ISBN 978-0517033760.
Further reading
- Swanborough, F.G.; Bowers, P.M. (1971). United States Military Aircraft Since 1908 (revised ed.). Putnams. p. 618. ISBN 0370000943.
- Fahey, James (1946). U.S. Army Aircraft 1908-1946 (1st ed.). Fall Church, VA: Ships & Aircraft.
