Evesham Friends Meeting House
Evesham Friends Meeting House is a historic Quaker meeting house at Moorestown-Mt. Laurel and Hainesport-Mt. Laurel Roads (Evesboro Road) in Mount Laurel, New Jersey.
Evesham Friends Meeting House | |
![]() | |
![]() ![]() ![]() | |
| Location | Moorestown-Mt. Laurel and Hainesport-Mt. Laurel Roads. (Evesboro Road), Mount Laurel Township, New Jersey, U.S. |
|---|---|
| Coordinates | 39°56′5″N 74°53′32″W |
| Area | 3.9 acres (1.6 ha) |
| Built | 1760 |
| Architectural style | Quaker architecture |
| NRHP reference No. | 82003268[1] |
| Added to NRHP | April 22, 1982 |
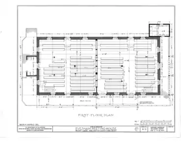
The meeting house was built in 1760 from local sandstone and expanded in 1798. It is the second oldest extent Quaker meeting house in Burlington County. The original meeting house on the site was built in 1698 behind the current building. A movable partition divides the older, eastern section from the newer section. During the Orthodox-Hicksite split, adherents of the Orthodox view met in the older section, while the Hicksites met in the newer section.[2] It was added to the National Register of Historic Places in 1982.
Interior of older section in 1936
First floor plan
Plot plan
References
- "National Register Information System". National Register of Historic Places. National Park Service. March 13, 2009.
- "Evesham Friends Meeting House, HABS NJ-31" (PDF). Library of Congress. Historic American Buildings Survey. Retrieved 11 January 2016.
External links
Wikimedia Commons has media related to Evesham Friends Meeting House.
- Evesham Friends Meeting House, Mount Laurel Road, Mount Laurel, Burlington County, NJ, Historic American Buildings Survey
This article is issued from Wikipedia. The text is licensed under Creative Commons - Attribution - Sharealike. Additional terms may apply for the media files.
.JPG.webp)


