Biddles Corner, Delaware
Biddles Corner is a location in St. George's Hundred, New Castle County, Delaware, United States.
Biddles Corner, Delaware | |
|---|---|
![]() Biddles Corner ![]() Biddles Corner | |
| Coordinates: 39°31′30″N 75°38′57″W | |
| Country | United States |
| State | Delaware |
| County | New Castle |
| Elevation | 33 ft (10 m) |
| Time zone | UTC-5 (Eastern (EST)) |
| • Summer (DST) | UTC-4 (EDT) |
| Area code | 302 |
| GNIS feature ID | 217031[1] |
Biddles Corner is at the intersection of U.S. Route 13 and Port Penn Road just east of the Biddles Corner toll plaza on the Delaware Route 1 toll road south of the Chesapeake and Delaware Canal.[2]
History
.png.webp)
1700s to 1850
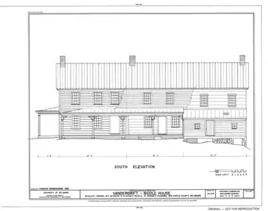
The Vandergrift-Biddle House was built at Biddles Corner starting in the 18th century.[3] The original property, consisting of 179 acres, was granted to Leonard Vandegrift by Thomas and William Penn in 1708 and became the Biddles Corner farm.[4] The Vandergrift-Biddle House was listed on the National Register of Historic Places in 1978.[3]
The Retirement Barn, a historically important barn, was built in the Biddles Corner area between 1790 and 1810.[5] The barn "is the last known surviving example in southern New Castle County of a tri-partite (three bay) traditional English style barn. Common in the 18th century this barn type was replaced with other modern agricultural building types in the mid 1800s."[6] It was listed on the National Register of Historic Places in 1985.[7]
The Mondamon Farm Barrack, built in the early 1800s, is "the last known example of a mid 19th-century earthfast hay barrack to survive in New Castle County". Open-sided hay structures like the barrack were once common in the 1700s and early 1800s.[8] It was also listed on the National Register of Historic Places in 1985.[7]
1850 to present
The Craven House, in the vicinity of Biddles Corner,[9] was built in the mid-19th century.
The 120 ft (37 m)-tall Liston Range Rear Lighthouse was built circa 1876 to 1877 east of its present site and was moved near Biddles Corner in 1906.[10][11] The lighthouse was listed on the National Register of Historic Places in 1978[12] and is Delaware's tallest lighthouse.[13]
In 1884, the Fort Penn Grange was building a large hall at Biddles Corner with an exhibition room.[14] The grange hosted various events in the hall such as magicians and Punch and Judy acts.[15]
In 1979, the ChesDel Diner opened in St. Georges at Biddles Corner. Called a "Biddles Corner staple", the restaurant closed in 2018.[16][17]
The Biddles Corner toll plaza opened in 1999.[18] The busy toll plaza has exceeded 360,000 vehicles on holiday weekends.[19]
See also
References
- "Biddles Corner". Geographic Names Information System. United States Geological Survey, United States Department of the Interior.
- Delaware Department of Transportation (2008). Delaware Official Transportation Map (PDF) (Map). Dover: Delaware Department of Transportation.
- "Vandergrift-Biddle House, Junction of US Route 13 & County Road 2, Saint Georges Hundred, Biddles Corner, New Castle County, DE". Library of Congress. Retrieved 2021-08-29.
- Conrad, Henry Clay (1908). History of the State of Delaware, Volume 2. p. 546.
- "Retirement Barn, U.S. Route 13, South of Route 2, Biddles Corner, New Castle County, DE". Library of Congress. Retrieved 2021-08-31.
- Booker, Margaret Moore (2011-02-23). "National Register of Historic Places in America". Oxford Art Online. Oxford University Press. doi:10.1093/gao/9781884446054.article.t2090591.
- "National Register Information System". National Register of Historic Places. National Park Service. July 9, 2010.
- "Mondamon Farm Barrack, Route 2, near Route 13, Biddles Corner, New Castle County, DE". Library of Congress. Retrieved 2021-08-29.
- Herman, Bernard L. (1989). Architecture and Rural Life in Central Delaware, 1700-1900. Univ. of Tennessee Press. p. 133. ISBN 978-0-87049-632-5.
- "Liston Range Rear Light, County Road 2, Biddles Corner, New Castle County, DE". Library of Congress. Retrieved 2021-08-29.
- Maynard, W. Barksdale (2008). "Lower New Castle County". Buildings of Delaware. Charlottesville: University of Virginia Press. pp. 207–208. ISBN 978-0-8139-2702-2.
- "National Register Information System". National Register of Historic Places. National Park Service. March 13, 2009.
- "Liston Range Rear Light, DE". Kraig Anderson. Retrieved 2021-08-29.
- "Wilmington Delaware Gazette And State Journal Archives". July 10, 1884. p. 4. Retrieved 2021-08-29.
- "Special Notice" (PDF). The Odessa Herald. 1888-11-03. Retrieved 2021-08-29.
- Hayes, Kevin. "A Biddles Corner staple throws in the towel after almost 40 years". WDEL.com. Retrieved 2021-08-31.
- Talorico, Patricia (2018-02-26). "ChesDel restaurant bows out after 38 years". Delaware Online. Retrieved 2021-08-31.
- Authority, New Jersey Turnpike (1999). Annual Report - New Jersey Turnpike Authority. New Jersey Turnpike Authority. p. 13.
- "Memorial Day weekend sees Route 1 traffic up". cpg.stparchive.com. June 1, 2018. p. 3. Retrieved 2021-08-31.


